Gemütliches Einfamilienhaus mit zwei Balkonen, herrlicher Aussicht ins Grüne und einem Carport!
Aufteilung des Einfamilienwohnhauses:
Erdgeschoss:
- Flur/Diele
- Küche
- Esszimmer
- Wohnzimmer
- Elternschlafzimmer mit Ausgang auf den Balkon
- Badezimmer mit Dusche und WC
Dachgeschoss:
- Flur/Diele
- Kinderzimmer I
- Kinderzimmer II mit Ausgang auf den Balkon
- Badezimmer mit Badewanne, WC und Handtuchwärmer
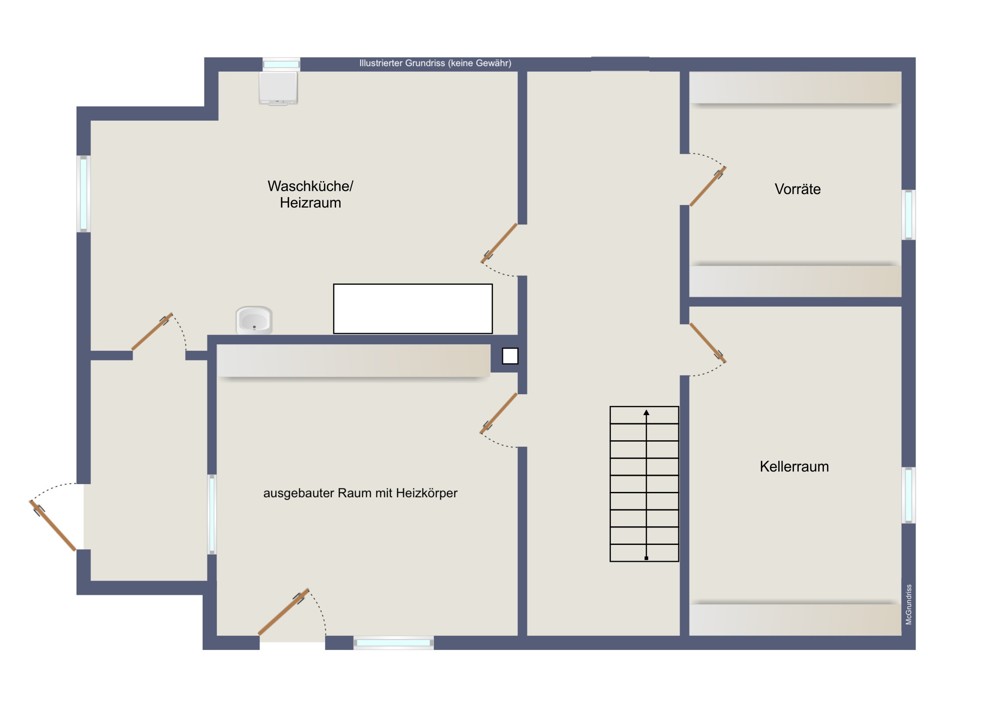
Kellergeschoss:
- Flur I
- ausgebauter Raum mit Heizkörper und Ausgang ins Freie
- zwei Kellerräume
- Waschküche und Heizungsraum
- Flur II mit Ausgang ins Freie
Energieausweisdaten:
Energiebedarfsausweis
Baujahr: 1956 (Baujahr Wärmeerzeuger: 2015)
Wesentlicher Energieträger: Öl
Endenergiebedarf: 224 kWh (m²a)
Energieeffizienzklasse: G
Zur Gemeinde Eichenbühl gehören die Ortsteile Riedern, Guggenberg, Heppdiel, Pfohlbach und Windischbuchen. Mit 2.630 Einwohnern finden Sie in Eichenbühl: Eine Metzgerei und eine Bäckerei mit Café und Lebensmittelgrundversorgung sowie einige Gaststätten. Große Lebensmittelmärkte, Drogerien und Apotheken stehen im nahe gelegenen Bürgstadt ca. 5 km entfernt zur Verfügung, die auch über den Radweg mit dem Fahrrad gut zu erreichen sind.
Medizinische Versorgung:
Zwei Allgemeinmediziner, ein Zahnarzt, eine Heilpraktikerin und einen Apotheken-Bringdienst. Weitere Ärzte finden Sie in Miltenberg. In Wertheim gibt es ein Krankenhaus. Eine Frauenklinik, die Hofgartenklinik und die Kinderklinik, sowie ein Krankenhaus finden Sie in Aschaffenburg. Weitere Krankenhäuser finden Sie in Miltenberg und Erlenbach.
Bildung:
Eichenbühl verfügt über einen Kindergarten und eine Kindertagesstätte sowie eine Grundschule. Weiterführende Schulen finden Sie in Miltenberg, Amorbach, Wertheim, Walldürn, Erlenbach, Obernburg, Elsenfeld und Aschaffenburg. In Miltenberg befindet sich eine Außenstelle der Technischen Hochschule Aschaffenburg.
Sport- & Freizeitangebote:
In Eichenbühl gibt es eine Reihe unterschiedlicher Vereine, unter anderem Sportvereine, eine Theatergruppe und die Freiwillige Feuerwehr. Ebenso finden sich in Eichenbühl eine Bücherei, Tennisplätze, eine Reitanlage, ein Golfplatz sowie eine Sporteinrichtung mit verschiedenen Angeboten wie z.B. Pilates und Reha-Sport. Im nahe gelegenen Miltenberg gibt es zudem einen Minigolfplatz und einen Flugplatz für Segel- und Motorflugsport sowie ein Hallenfreibad und ein Kino. Im Nachbarort Bürgstadt steht ein Freibad zur Verfügung.
Verkehrsanbindung:
Die nächstliegenden Autobahnen sind die A3 und die A81. Einen Bahnhof finden Sie in MIL, von dort bestehen gute Bahnverbindungen nach AB und Wertheim. Durch die hervorragende Verkehrsanbindung über die B469 erreichen Sie Aschaffenburg in 35 bis 40 Fahrminuten.
Im Jahr 1956 wurde dieses EFH in massiver Bauweise errichtet und fertiggestellt. Das Anwesen steht auf einem ca. 350 m² großen Grundstück, welches im idyllischen Erftal am Ortsrand von Eichenbühl liegt. In der Immobilie wurden immer wieder Renovierungen durchgeführt, daher befindet sie sich in einem gepflegten Zustand.
Ein paar Meter vom Haus entfernt, gibt es zusätzlich ein kleines, grünes Grundstück (Fl-Nr. 589) mit ca. 119 m². Dieses Grundstück wird mitverkauft und ist im Kaufpreis enthalten.
Das Einfamilienhaus verfügt über ca. 114 m² verteilt auf das Erd- und Dachgeschoss. Im Erdgeschoss finden Sie ein großes Wohnzimmer, ein Esszimmer mit angrenzender Küche, ein Elternschlafzimmer sowie ein helles Badezimmer mit Dusche und WC. Das Dachgeschoss bietet zwei große Kinderzimmer sowie ein schickes Badezimmer mit Badewanne, WC und Handtuchwärmer. Vom Elternschlafzimmer im Erdgeschoss und von einem Kinderzimmer im Dachgeschoss haben Sie jeweils einen Ausgang auf einen Balkon. Die Balkone präsentieren einen wunderschönen Ausblick in die grüne Natur.
Die Immobilie wird mit einer Öl-Zentralheizung aus dem Jahr 2015 beheizt. Die Öl-Tanks wurden ebenfalls im Jahr 2015 erneuert. Im Erdgeschoss befindet sich ein Kachelofen, der für zusätzliche Wärme und eine gemütliche Atmosphäre in der Wohnung sorgen kann, wenn der Kachelofeneinsatz ausgetauscht wird. Das Treppenhaus wurde im Jahr 2009 modernisiert. In diesem Zuge sind auch die Leitungen (Strom, Wasser, Heizung) im Treppenhaus und im Dachgeschoss erneuert worden. Das Badezimmer im Erdgeschoss wurde im Jahr 1995 und das Badezimmer im Dachgeschoss mit Marmorboden im Jahr 2008 renoviert. Die Kunststofffenster sind teilweise von 1985 und 1998. Die Böden sind unterschiedlich mit Laminat, Fliesen und PVC ausgelegt. Die Außenfassade wurde gedämmt.
Ein paar Meter vom Haus entfernt, gibt es zusätzlich ein kleines, grünes Gartengrundstück mit ca. 119 m². Dieser Garten ist im Kaufpreis enthalten.


