Aufteilung:
Erdgeschosswohnung mit ca. 75 m² Wohnfläche:
- Flur
- Wohnzimmer
- Küche
- Schlafzimmer
- Kinderzimmer
- Badezimmer mit Badewanne, Dusche und WC
- Gäste-WC (nur vom Treppenhaus begehbar)
- Werkstatt mit separatem Eingang
Die Werkstatt ist von außen zugänglich oder von der Wohnung im Obergeschoss über eine Treppe erreichbar. Dieser Raum eignet sich ideal für Handwerker und Bastler oder ggf. als weitere Garage.
Obergeschosswohnung mit ca. 110 m² Wohnfläche:
- Flur
- Wohnzimmer
- Küche
- Schlafzimmer
- Kinderzimmer I
- Kinderzimmer II
- Badezimmer mit Badewanne, Dusche und WC
- separates WC
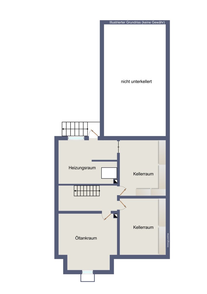
Kellergeschoss (teilweise unterkellert):
- zwei Kellerräume
- Heizungsraum
- Öltank-Raum
Energieausweisdaten:
Energiebedarfsausweis
Baujahr: 1929 / Anbau 1956 / Aufstockung 1974
Wesentlicher Energieträger: Öl
Endenergiebedarf: 271,08 kWh (m²a)
Energieeffizienzklasse: H
Mit 1.925 Einwohnern finden Sie in Hausen für den täglichen Lebensbedarf: Eine Bäckerei und mehrere Gaststuben/Restaurants. Einkaufsmöglichkeiten und Supermärkte finden Sie im Nachbarort Kleinwallstadt und Elsenfeld.
Medizinische Versorgung:
Sie finden in den Nachbarorten Hofstetten einen Allgemeinmediziner und in Kleinwallstadt zwei Allgemeinmediziner, einen Frauenarzt und drei Zahnärzte. In Aschaffenburg gibt es ein Krankenhaus, eine Frauenklinik, die Hofgartenklinik und die Kinderklinik, sowie ein Krankenhaus in Erlenbach und Miltenberg.
Bildung in Hausen:
Hausen verfügt über einen Kindergarten und eine Grundschule. Eine Mittelschule ist in Kleinwallstadt. Die weiterführenden Schulen finden Sie in Elsenfeld, Obernburg, Erlenbach und Aschaffenburg.
Sport- und Freizeitangebote in Hausen:
Von Hausen aus erreicht der Wanderer auf gut ausgebauten Wegen die Nachbarortschaften Eichelsbach, Leidersbach, Rossbach, Kleinwallstadt. Hausen bietet eine Bücherei, ein Dorfmuseum, eine Kegelbahn, aber auch Fußballvereine sowie Musikvereine. Weitere Freizeitangebote finden Sie in Kleinwallstadt, Obernburg, Elsenfeld und Aschaffenburg.
Verkehrsanbindung:
Die Bundesstraße 469 erreichen Sie von Hausen in ca. 15 Minuten. Die B469 erlaubt eine schnelle Anbindung an die A3 Würzburg-Frankfurt. Mit dem Bus werden außerhalb Hausen, Elsenfeld/Obernburg und Aschaffenburg problemlos erreicht.
Dieses geräumige Wohnhaus mit Nebengebäude wurde 1929 als EFH errichtet und 1956 mit einer Werkstatt angebaut. Im Jahre 1974 wurde das Anwesen aufgestockt und zu einem Zweifamilienhaus umgebaut. Die Immobilie besticht durch sein großzügiges Raumangebot.
Die Immobilie verfügt über zwei abgeschlossene Wohneinheiten und einem nachträglich ausgebauten Raum im DG. Die Wohnung im EG mit ca. 75 m² Wohnfläche verfügt über 3 Zimmer, eine Wohnküche, ein Badezimmer mit Badewanne, Dusche und WC sowie ein Gäste-WC. Von der Wohnküche haben Sie einen Zugang in die Waschküche und ins Freie. Diese Wohnung ist seit 2016 vermietet.
Die OG-Wohnung mit ca. 110 m² Wohnfläche verfügt über ein Wohnzimmer, eine Küche mit Essplatz, zwei Kinderzimmer, ein Elternschlafzimmer mit Ankleide, ein Badezimmer mit Badewanne, Dusche und WC sowie ein separates WC. Der überdachte Balkon ist vom Elternschlafzimmer und vom Flur zugänglich.
Im DG wurde in den 90er Jahren nachträglich ein Raum ausgebaut. Dieser ist mit einem Tageslichtfenster und einem Heizkörper ausgestattet. In diesem Raum wurden die Schrägen und der Boden gedämmt. Der restliche Teil des Dachgeschosses dient als Speicher bzw. Abstell-/Lagerfläche.
Die Immobilie wird mit einer Öl-Zentralheizung aus dem Jahr 1991 (Brenner von 2008) beheizt. Im Jahr 2009 wurde die Erdgeschosswohnung renoviert. Dabei wurden neue Kunststoff-Fenster eingebaut, die Innentüren ausgetauscht und die Bödenbeläge (Fliesen in Holzoptik) erneuert. Weiterhin wurde eine Küche eingebaut und die neuen Wasser- und Stromleitungen installiert. Ebenso wurde das Badezimmer renoviert.
Die Wohnung im OG ist mit Holzfenstern ausgestattet. Die Böden sind unterschiedlich mit Fliesen und Laminat belegt. Es wurde bereits ein Heizkörper im Elternschlafzimmer ausgetauscht und das Badezimmer zeitgemäß modernisiert. Diese Wohnung befindet sich überwiegend in einem renovierungsbedürftigen Zustand.
Das Grundstück hat eine Größe von ca. 372 m² und ist sehr pflegeleicht angelegt.



