Hereinspaziert in dieses charmante Einfamilienhaus mit Garten und Garage in Stadtlage!
Aufteilung:
Erdgeschoss:
- Diele
- offener Wohn- und Essbereich
- Küche mit Speisekammer
- Gästezimmer oder Kinderzimmer
- Gäste-WC
- Badezimmer mit Badewanne und WC
Dachgeschoss:
- Diele
- Durchgangszimmer
- Badezimmer mit Dusche und WC
- Elternschlafzimmer mit Ankleide
- Kinderzimmer (vormals Werkstatt)
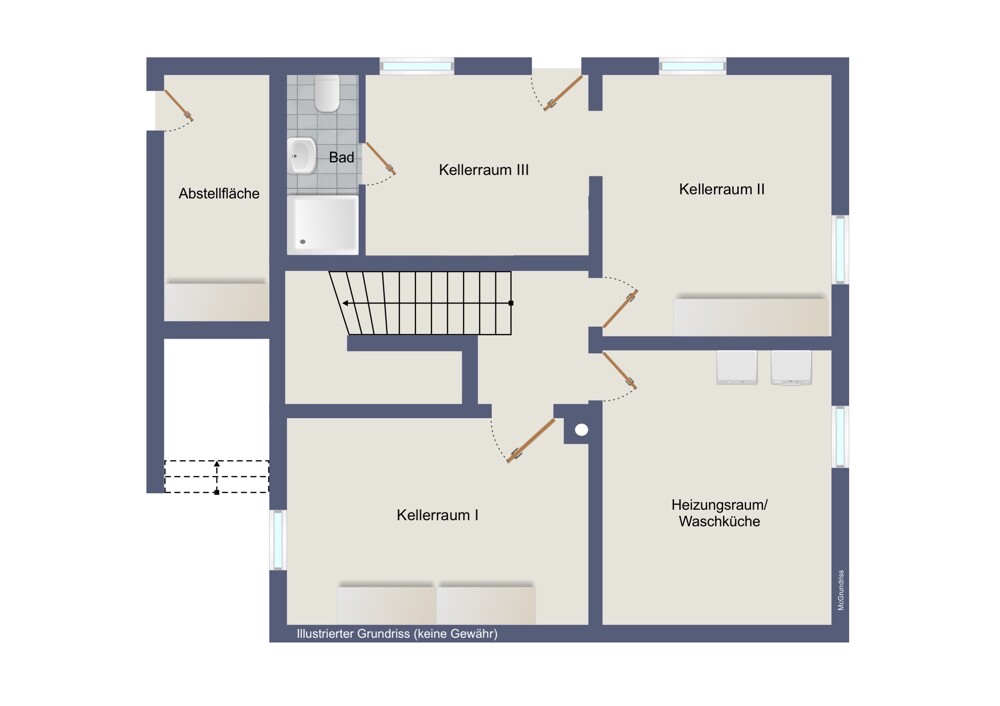
Kellergeschoss:
- Kellerraum I
- Heizungsraum und Waschküche
- Kellerraum II
- Kellerraum III mit Ausgang ins Freie
- Badezimmer mit Dusche und WC
Obernburg ist eine charmante kleine Stadt mit ca. 8.900 Einwohnern. Sie finden für den täglichen Lebensbedarf: Mehrere Bäckereien und Metzgereien, Verbraucher- und Lebensmittelmärkte, sowie eine Fußgängerzone mit netten Cafes, Eisdielen und Restaurants.
Medizinische Versorgung:
Drei Allgemeinärzte, einen Frauenarzt, einen HNO-Arzt, einen Hautarzt, einen Internisten, zwei Zahnärzte, zwei Ergotherapeuten, vier Physiotherapeuten sowie drei Apotheken. In Aschaffenburg gibt es ein Krankenhaus, eine Frauenklinik, die Bergman Hofgartenklinik und die Kinderklinik, sowie ein Krankenhaus in Erlenbach und Wertheim.
Bildung:
Obernburg verfügt über vier Kindergärten, eine Staatliche Realschule, eine Staatliche Berufsschule, eine Staatliche Berufs- und Fachoberschule und eine Städtische Musikschule sowie eine Grund- und Mittelschule. Gymnasien finden Sie in Erlenbach, Elsenfeld und Aschaffenburg.
Sport- und Freizeitangebote:
Naturliebhaber und Freizeitsportler profitieren von der wunderschönen Mainanlage mit einem großen Kinderspielplatz. Ebenso verfügt Obernburg über eine Mountainbike- und Downhillstrecke, eine Skateranlage, eine Reitanlage, eine Tennisanlage und eine Kegelsportanlage. Restaurants und Kneipen finden sich ebenso in Obernburg, wie ein Jugendzentrum, einen Rosengarten und ein Museum. In Elsenfeld gibt es ein Hallenbad und ein Freibad in Großwallstadt und Erlenbach.
Verkehrsanbindung:
Obernburg ist verkehrsmäßig sehr gut zu erreichen. Die B469 erlaubt eine schnelle Anbindung an die A3 Würzburg-Frankfurt. Mit den öffentlichen Verkehrsmitteln Bus und Bahn werden außerhalb Obernburg die Städte Miltenberg und Aschaffenburg, von dort aus weiterführend Frankfurt und Würzburg, und innerhalb von Obernburg alle Ortsteile problemlos erreicht. Die Busse führen durch den Ortskern nach Aschaffenburg und Elsenfeld (Linie 60) und nach Mömlingen (Linie 68).
Besonderheiten und Vorzüge:
Im Jahr 1928 wurde dieses Einfamilienhaus in massiver Bauweise errichtet und fertiggestellt. Das Anwesen steht auf einem ca. 330 m² großen Grundstück, welches in Stadtnähe in Obernburg liegt. Die Immobilie ist unbewohnt.
Das Einfamilienhaus verfügt über ca. 136 m² verteilt auf das Erd- und Dachgeschoss. Im Erdgeschoss finden Sie ein großes Wohn-/Esszimmer, ein Küche mit angrenzender Speisekammer, ein Schlafzimmer, ein Badezimmer mit Badewanne und WC sowie ein Gäste-WC. Das Dachgeschoss bietet ein Elternschlafzimmer mit angrenzender Ankleide, ein weiteres Schlafzimmer sowie ein Durchgangszimmer mit Zugang in das Badezimmer mit Dusche und WC. Das Durchgangszimmer ist ideal als Büro oder als Ankleide. Vom Treppenhaus haben Sie einen Zugang auf den Balkon.
Die Immobilie wird mit einer Gas-Zentralheizung aus dem Jahr 2001 beheizt. Die Kunststofffenster sind teilweise von 1984. Die Böden sind unterschiedlich mit Laminat, Holz, Fliesen und Teppich ausgelegt.
Energieausweisdaten:
Energiebedarfsausweis
Baujahr: 1928/1930 (Baujahr Wärmeerzeuger: 2001)
Wesentlicher Energieträger: Gas
Endenergiebedarf: 280 kWh (m² a)
Energieeffizienzklasse: H


